LUISIMO | Nos programmes en cours

Si ce programme vous intéresse, contactez-nous:
    luisimo@orange.fr / Fax 05 59 23 18 76 / Téléphone 06 80 30 99 35
Avenue des Thermes Cambo

     Choisir un autre projet:

Avenue des Thermes à Cambo
Saint-Jean à Hasparren
Labiry à Hasparren

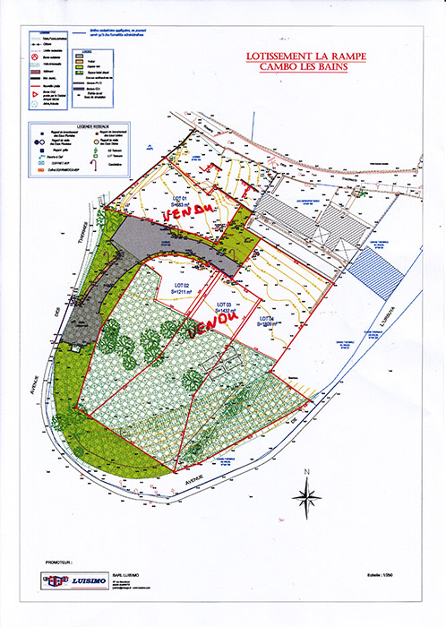
Mise à jour : les lots vendus (mars 2017)

Lots 1 et 3 vendus.


( cliquez sur le plan pour l'agrandir)


Plan de composition

Emplacement du terrain à bâtir


( cliquez sur la photo pour l'agrandir)

( cliquez sur la photo pour l'agrandir)


Les photos de Avenue des Thermes


( cliquez sur la photo pour l'agrandir)

( cliquez sur la photo pour l'agrandir)


Le descriptif

Cambo-les-Bains - Terrains à bâtir viabilisés
N° lotSurfacesPrixSurfaces de plancher possibles
Lot 1672 m²99 000 €270 m²
Lot 21302 m²129 000 €270 m²
Lot 31421 m²129 000 €270 m²
Lot 41783 m²129 000 €270 m²
Lot 5526 m²81 000 €132 m²